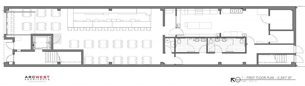
ArcWest Architects is excited to share our proposed design for a new mixed use, multi-story commercial building project at 2706 Larimer Street. The footprint and each floor of the building are roughly 3,000 sf gross. The main street level is planned to be a new restaurant, American Bonded. Restaurant seating is planned with open air views from the bar.
The upper two floors of the building are laid out to be available as office space. The office floors can be finished out as 2 smaller suites, or a prospective tenant could acquire the entire floor. Both of the upper floors have the ability to open a garage door on the North side to allow for fresh air on mild temperate Colorado days.
With construction slated to kick off this Summer, the property owner is seeking tenants to lease out each floor, in there entirety or in smaller suites as illustrated above If you are looking for a great space along the heart line of Larimer in the RiNo district, please contact Lisa V. with Anthovelli, LLC at 303.818.0344


